Beschrijving
fischer Kozijnplug F 10 S 120 Verzonken kop ev
Art. nr. 88627
Kenmerken
Spanningsvrije bevestiging met een lange levensduur van het kozijnen. Doorlopend schroefdraad voorkomt het aantrekken van het kozijn.
Gebruik voor alle soorten massief en poreus bouwmateriaal reduceert de complexiteit.
Trek- en drukbestendige verankering van metalen en kunststof profielen.
De schroefkop wordt met een dop afgedekt.
Productomschrijving
De nylon plug voor een spanningsvrije montage op afstand van raam- en deurkozijnen.
Voordelen
Het werkingsprincipe van de plug voorkomt dat het raamkozijn tegen de ondergrond wordt getrokken en zorgt voor een spanningsvrije en duurzame bevestiging van het kozijn.
De speciale plugvorm verankert de metalen en kunststof profielen tegen druk- en trekbelastingen en zorgt voor een stevig houvast van het raamframe.
De afdekkappen (afzonderlijk verkrijgbaar) kunnen worden gebruikt om de schroefkoppen af te dekken.
De fischer Kozijnbevestiging F-S is een speciale plug voor een spanningsvrije afstandsmontage van raam- en deurkozijnen. De bevestiging bestaat uit een plug van kwalitatief hoogwaardig nylon en een schroef met verzonken kop met kruiskop-opname van gegalvaniseerd staal. De F-S wordt in de tijdbesparende doorsteekmontage geplaatst. Bij het aandraaien van de schroef wordt de met glasvezel versterkte kunststof conus in de huls getrokken, spreidt open en spant deze tegen de wand van het boorgat. Zo wordt het kozijn spanningsvrij in massieve en geperforeerde bouwmaterialen bevestigd.
Technische gegevens
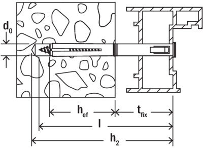
Boordiameter (d0) 10 mm
Min. verankeringsdiepte (hef) 50 mm
Pluglengte (l) 120 mm
Max. dikte aanbouwdeel (t fix) 60 mm
Min. boorgatdiepte bij doorsteekmontage (h2) 135 mm
Max. aandraaimoment bij verankering (Tinst) 6 N·m
Soort verpakking Doos
Hoeveelheid 50 St.
GTIN (EAN-Code) 4006209886274
Bijkomende informatie
| Barcode | |
|---|---|
| Leverancierscode | |
| Artikelgroep | |
| Merk | |
| Lengte | |
| Materiaal | |
| Boordiameter | |
| Verpakt per (stuk) |









